LIÊN HỆ NGAY ĐỂ ĐƯỢC TƯ VẤN TRỰC TIẾP
Tọa lạc tại vị trí đắc địa bậc nhất quận Hà Đông, mảnh đất vàng cuối cùng dọc trục đường Lê Văn Lương & Tố Hữu kéo dài, con đường huyết mạch, trung tâm về giao thông, giao thương tại cửa ngõ phía tây của thủ đô, mỗi căn Liền kề shophouse tại Him Lam Vạn Phúc đều sở hữu hai mặt phố thuận tiện cho việc đầu tư và kinh doanh. Dự án hứa hẹn sẽ là một khu phố tài chính, kinh doanh đáng sống bậc nhất tại khu vực.
Him Lam Vạn Phúc – Đất Sống Phồn Vinh, Thuận Sinh Phú Quý
TỔNG QUAN DỰ ÁN HIM LAM VẠN PHÚC
Chủ đầu tư: Công ty cổ phần Him Lam (Thuộc top 10 công ty Bất động sản có tài chính lớn và uy tín nhất)
Vị trí: Lô A-P, Dự án khu nhà ở Him Lam Vạn Phúc, Phường Vạn Phúc, Quận Hà Đông, Thành phố Hà Nội (trục đường rộng 44 mét)
Tổng diện tích dự án: 70.928,7 m2
Diện tích XD: 24.242 m2
Mật độ xây dựng: 34,3% (mật độ thấp tạo nhiều không gian cho cây xanh và đường được nhiều hơn)
QUY MÔ DỰ ÁN HIM LAM VẠN PHÚC
Dự án Him Lam Vạn Phúc có 222 Căn Liền kề shophouse, có 03 khu A,B,C. mỗi khu có nhiều Block và mỗi Block có từ 7 đến 9 căn hộ (xem mặt bằng tổng thể ở bên dưới).
Diên tích mỗi căn từ 84,45 – 126,68 m2, Xây dựng 6 tầng lầu, tất cả các căn hộ đều có 2 mặt tiền và nhiều ô thoáng (tạo không gian thoáng đoãng và thoải mái).
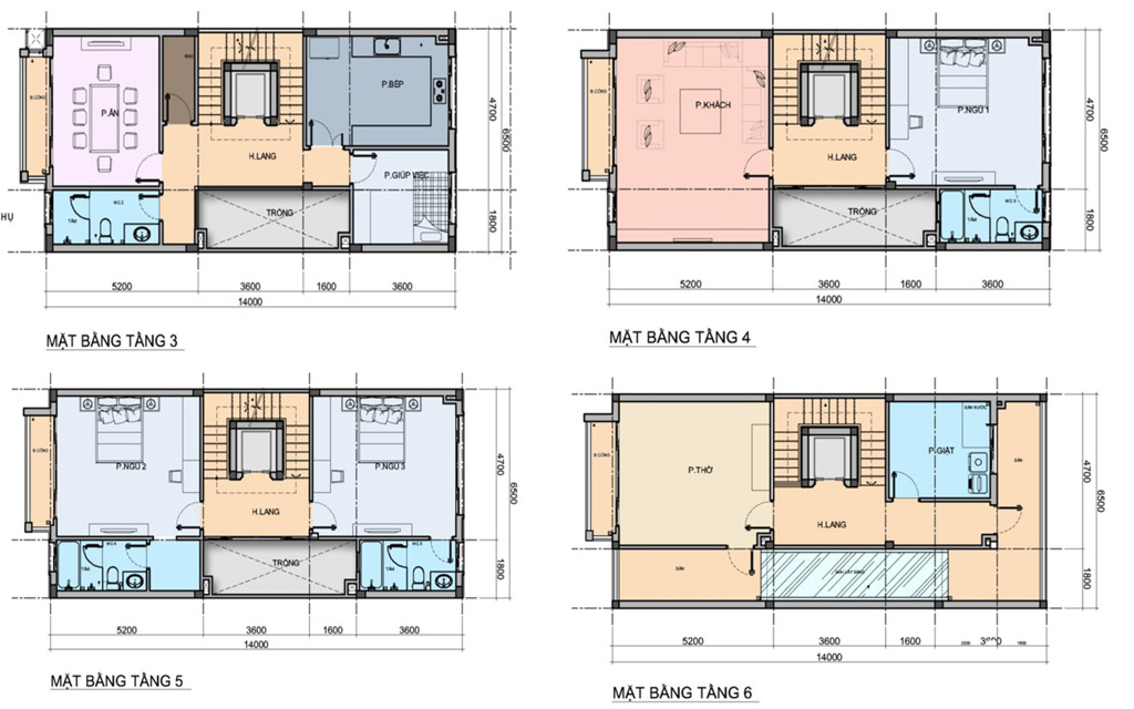
CÔNG NĂNG MỖI TẦNG
Tầng 1: Để xe và kinh doanh
Tầng 2: Kinh doanh và để kho hàng
Tầng 3: Làm văn phòng làm Việc + Nhà bếp
Tầng 4: 01 phòng khách và phòng ngủ lớn
Tầng 5: 02 phòng ngủ lớn khép kín rộng rãi thoáng mát
Tầng 6: Làm sân thượng và phòng thờ
Quy mô dân số dự án Him Lam Vạn Phúc: Dao động 1001 người.
VỊ TRÍ KHU DỰ ÁN HIM LAM VẠN PHÚC
– Dự án tọa lạc tại phường Vạn Phúc, Quận Hà Đông, TP Hà Nội. Nằm dọc trục đường Tố Hữu & Lê Văn Lương kéo dài, tiếp giáp các khu đô thị hiện hữu, đặc biệt nằm gần tuyến tàu điện trên cao thuận tiện cho việc giao thương hàng hóa và di chuyển vào trung tâm thành phố cũng như liên kết đi các tỉnh lân cận.
– Dự án Him Lam Vạn Phúc có kết nối giao thông thuận tiện, đi về trung tâm thành phố Hà nội theo hướng đường Nguyễn Trãi, Lê Văn Lương, Tuyến đường sắt Hà Đông – Cát Linh, Tuyến Bus nhanh BRT, đi về các tỉnh miền bắc như Hưng Yên, Bắc Ninh, Hải Dương, Hải Phòng Quảng Ninh theo đường vành đai 3, đi Sơn Tây theo Hướng đường Lê Trọng Tấn kéo dài, Thuận Tiện đi về Hòa Bình theo Đường Quốc Lộ 6.
Dự án Him Lam Vạn Phúc nằm trung tâm giữ quần thể các khu đô thị mới như: KĐT Dương Nội, KĐT Văn Khê, KĐT An Hưng, Park City được quy hoạch hạ tầng mới, đồng bộ. Dự án gần với một số cao ốc văn phòng và chung cư như: HN Landmark 51, Gold Silk Complex, HP Landmark Tower, giáp với trường Quốc tế Nhật Bản JIS…tạo ra một môi trường sống dân trí cao, văn minh và hiện đại, dự án tiềm năng Him Lam Vạn Phúc hứa hẹn sẽ có những tiện ích đẳng cấp cho cư dân trong tương lai.
– Đây được xem là vị trí đắc địa nhất trong quy mô khai thác của thủ đô Hà Nội. Nằm ngay khu trung tâm Phường Vạn Phúc, nơi hội tụ những cửa hiệu kinh doanh sẩm uất và tiện ích với đầy đủ các mặt hàng chắc chắn sẽ là không gian mua sắm không thể bỏ lỡ. Nằm hai bên tuyến đường Tố Hữu giáp với khu dân cư phường Vạn Phúc là điểm mấu chốt mà bất cứ khách hàng nào, ngay từ lần đầu tiên khám phá đều bị ấn tượng và thích thú
– Phía Tây dự án Him Lam Vạn Phúc giáp đất nông nghiệp và trường quốc tế nhật bản
– Phía Đông dự án Him Lam Vạn Phúc giáp ngã tư vạn Phúc và Shophouse 24h
– Phía Nam dự án Him Lam Vạn Phúc giáp dự án TTTM làng nghề truyền thống
– Phía Bắc dự án Him Lam Vạn Phúc giáp dự án khu dân cư Simco Sông Đà.
MẶT BẰNG TỔNG THỂ KHU DỰ ÁN HIM LAM VẠN PHÚC
Mặt Bằng chi tiết căn hộ Him Lam Vạn Phúc
Mặt bằng thương mại tầng 1,2 (Kinh doanh và Bán hàng)
Mặt bằng căn hộ tầng 3,4,5,6 (Làm văn phòng và để ở)
Nét độc đáo trong lối thiết kế của dự án Him Lam Vạn Phúc
Mang trong mình kiến trúc cổ điển Pháp, những căn Liền kề shophouse Him Lam Vạn Phúc khẳng định đẳng cấp và gu tinh tế của chủ nhân khi sở hữu không gian sống tuyệt vời này. mỗi căn shophouse tại đây được sáng tạo khi kết hợp nét kiến trúc nguyên bản và sáng tạo theo hướng hiện đại, trang nhã do đó nó sẽ mang trong mình những kiến trúc kinh điển vượt thời gian.
Sự khác biệt của dự án Him Lam Vạn Phúc là sự kết hợp hoàn hảo giữa vẻ đẹp của kiến trúc với vị trí vàng về giao thương – kim cương về giá trị sử dụng. tất cả các căn đều được thiết kế thông thoáng 2 mặt tiền, mặt đường rộng giúp cho công việc kinh doanh đạt độ sinh lời tối đa.
Nổi bật trong thiết kế của dự án là mang được tiện ích 3 trong 1. Mỗi căn shophouse Him Lam Vạn Phúc có những công năng sau:
- Tầng 1,2 là khu thương mại, kinh doanh mua sắm, tại đây có thể kinh doanh các loại hình như Spa, phòng tập Gym, nhà hàng, khu phố làng lụa theo xu hướng hiện đại, cách tân, kinh doanh các mặt hàng xa xỉ phẩm…
- Tầng 3 có thể làm văn phòng công ty, khác xa với sự ồn ào và nhộn nhịp tại khu thương mại ở hai tâng bên dưới, tầng 3 là nơi yên tĩnh và tạo không gian thoải mái cho những đột phá, sáng tạo trong công việc.
- Tầng 4,5,6 là nơi sinh sống của toàn thể gia đình, nơi đắm chìm vào không gian riêng tư sau một ngày bận bựu với công việc, nơi bạn tận hưởng không gian, lối kiến trúc pháp ngay tại căn nhà của bạn.
TIỆN ÍCH NỘI KHU VÀ NGOẠI KHU CỦA DỰ ÁN HIM LAM VẠN PHÚC
– Cách 5 phút chạy xe để tới Tuyến đường sắt Hà Đông – Cát Linh đang Xây dựng và dần được đưa vào sử dung (khi tuyến đường được đưa vào sử dụng việc lưu thông con người và hàng hóa rất dễ ràng)
Điểm đầu của Tuyến tại nút giao cắt đường Cát Linh – Giảng Võ, đi theo đường Hào Nam, qua phố Hoàng Cầu tới đường Láng, sau đó chạy ngang qua sông Tô lịch, chạy dọc theo trục đường Nguyễn Trãi – Trần Phú – Quang Trung và kết thúc tại ga Bến xe Yên Nghĩa.
– Xe Bus nhanh Hà Nội đã đi vào hoạt động (BRT)
Tuyến buýt nhanh BRT Yên Nghĩa – Kim Mã có chiều dài 14,79 km, sử dụng 27 xe. Dọc tuyến đường có 21 nhà chờ và hai điểm đầu cuối hoạt động trong làn đường ưu tiên.
Xe hoạt động từ 5h sáng đến 22h tối các ngày trong tuần, với thời gian đón khách từ 6-11-15 phút/chuyến và từ 8-11-14 phút/lượt vào ngày Chủ nhật. Theo đó, sẽ có gần 400 lượt trên một ngày thường và khoảng 300 lượt vào ngày Chủ nhật.
– Tiện ích liên kết của Dự án Him Lam Vạn Phúc
Từ vị trí dự án dễ dang di chuyển một cách thuận tiện tới:
- Khu đô thị văn khê cách 1,7km
- Học viện chính trị cách 1,9km
- UBNN quận Hà Đông cách 1,7km
- Sân vận động Hà Đông cách 1,9km
- Bến xe Hà Đông cách 2,2km
- Trung tâm y tế Hà Đông cách 1,7km
- Trường mầm non Vạn Phúc cách 700m
- Trường tiểu học vạn phúc cách 240m
- Vườn hoa Hà Đông cách 1,5km
Hệ thống giáo dục xung quanh dự án Him Lam Vạn Phúc
Quận Hà Đông đã được đồng bộ về hệ thống giáo dục, trong quận có đầy đủ các trường học từ cấp mầm non cho tới đại học. và tất cả các trường đều rất gần dự án. Điển hình như: Trường tiểu học mầm non Chu Văn An, trường tiểu học Vạn Phúc, Trường tiểu học ban mai, Trường tiểu học THCS Hà Nội Thăng Long, Trường THCS Vạn Phúc, trường THPT Hà Đông, trường THPT Lê Quý Đôn, trường DDH Kiểm Soát HN, Học Viện Chính Trị Quân Sự…
Gần kề dự án Him Lam Vạn Phúc có trường học Quốc Tế Nhật Bản JIS (cách dự án 40m)
Phòng Kinh Doanh Chủ Đầu Tư Him Lam
Hotline: 0943 189 939
Email: namlandhn@gmail.com









